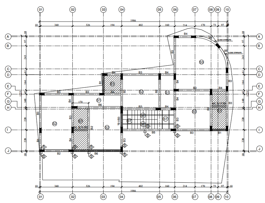
In Oman’s sandy and variable soils, structural integrity is non-negotiable. Our Structural Drawings deliver bombproof designs that endure. Using advanced FEA software, we engineer load-bearing plans for pipelines, refineries, and beyond. We incorporate wind-resistant features that extend asset life. Over 90 projects later, clients rave about our precision that minimises over-engineering and maximises safety. From foundations to facades, we build resilience into every line. Structure your success story. Engineer your structures.